
HI kjøper helelektrisk arbeidsbåt til nytt sjøanlegg i Austevoll
Havforskningsinstituttet har signert avtale med Solund Verft om bygging av en ny helelektrisk anleggsbåt til bruk ved det nye sjøanlegget ved deres forskningsstasjon i Austevoll.
Denne artikkelen er tre år eller eldre.
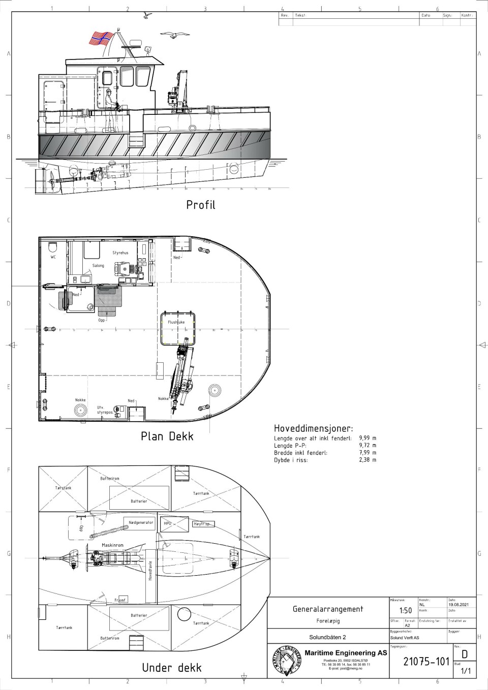
Båten skal bygges ved Solund Verft, med en batteripakke levert av Austevoll Elektroautomasjon. Fartøyet er designet av Maritime Engineering i samarbeid med verftet-
Avtalt pris er 12,6 millioner kroner, og i og med at den er helektrisk kvalifiserer den til Enovastøtte.
Det var selskapet Nor-Mær som vant oppdraget med å bygge det nye sjøanlegget for Havforskningsinstituttet. I sjøanlegget er det 16 merder på 12 x12 meter, som også kan deles inn i fire seksjoner.
Det nye fartøyet blir 10 meter langt og åtte meter bredt, og skal brukes ved og rundt det nye sjøanlegget.

Den skal utstyres med kran og skal typisk ta seg av merdskifte/notskifte, transport av utstyr fra kai til sjøanlegg og frakt av fiskefôr.
Batteripakken skal ha en kapasitet på åtte timer før den må lades, hvor ladestasjonen skal plasseres på kai mellom sjøanlegg og land, med mulighet for vedlikeholdslading på sjøanlegget.
Det er ventet at fartøyet skal leveres innen mai 2023, og bygges i sin helhet ved Solund Verft.